Bilocale in vendita

Catania, Via della Concordia - San Cristoforo
€ 55.000
2 locali 2 locali
115 Mq 115 Mq
1 bagno 1 bagno

Bilocale in vendita

Catania, Via della Concordia - San Cristoforo

Descrizione annuncio

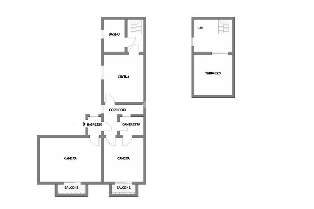
In via Della Concordia, proponiamo in vendita un appartamento posto al primo piano di una piccola palazzina con facciata in buono stato, composta da solo due unità abitative.

La disposizione interna comprende due vani e mezzo con ingresso su disimpegno, due ampie camere, una cameretta, cucina abitabile e bagno con doccia. Collegato all'appartamento è presente un comodo piano ammezzato, che aggiunge versatilità agli spazi, dove troviamo una ampia camera adibita a lavanderia ed un terrazzo di circa 15 mq.

L'immobile si vende locato con contratto di locazione con scadenza Marzo 2026.

Al piano terra dello stesso stabile, è possibile acquistare un locale commerciale di categoria catastale C/1 di 83 mq.

La zona è ben servita da diverse attività commerciali e per gli spostamenti è possibile usufruire dei mezzi pubblici. Per maggiori informazioni contattaci allo 095387884 o al 3662485860.

Mostra tutto

Nelle vicinanze

Trasporto pubblico Trasporto pubblico
Porto
Porto
1,7 Km
Stesicoro
Stesicoro
1,8 Km
stazione di Catania Acquicella
stazione di Catania Acquicella
330 m
stazione di Stesicoro
stazione di Stesicoro
1,8 Km
Concordia-Ferrera
Concordia-Ferrera
90 m
Ricariche auto elettriche Ricariche auto elettriche
Centro Commerciale Elisa | EnelX
560 m
Catania Castello Ursino | EnelX
790 m
Catania Acquicella Porto | EnelX
800 m
Enel Distribuzione Spa
1,1 Km
Catania Garibaldi | EnelX
1,1 Km
Scuole Scuole
Scuola Media "Andrea Doria"
450 m
Circolo Didattico "Caronda"
890 m
Istituto Comprensivo Statale "Caronda"
910 m
Liceo Scientifico Enrico Boggio Lera
950 m
Istituto Comprensivo Amerigo Vespucci
1,0 Km
Farmacia Farmacia
Farmacia della Concordia
130 m
Farmacia
550 m
Farmacia Plebiscito
710 m
Farmacia dott.Carbone
720 m
Farmacia Rizzo Nervo
790 m
Ospedali Ospedali
Presidio ospedaliero Santa Marta
1,3 Km
Presidio ospedaliero Garibaldi Centro
1,9 Km
Supermercati Supermercati
MD
220 m
Lidl
670 m
Supermercati Tocal
1,0 Km
Supermercati
1,1 Km
Super Conveniente
1,2 Km
Negozi Negozi
Naturalmente Pane
10 m
Panificio
460 m
Panificio Dante
760 m
Negozi
840 m
Panificio e Biscotti
890 m
Bar Bar
Bar Gammazita
890 m
Barnaut
960 m
Lemon & Seltz
1,1 Km
The Hole
1,2 Km
Lounge bar Quindici
1,3 Km
Ristoranti Ristoranti
A putia do calabrisi
20 m
Antichi Archi
550 m
Trattoria Balicicò
640 m
Al Cavaliere Roxy
720 m
Tipico
760 m
Mostra tutto

Caratteristiche

Rif.:
61115277
Piano:
1 di 2 (Piano basso)
Balconi:
2
Terrazzi:
1
Camere da letto:
1
Arredamento:
Assente
Mostra tutto
Prezzo Prezzo
€ 55.000
Rata mutuo Rata mutuo
€ 259 / mese
Spese annue Spese annue
€ 0
Proponi il tuo prezzoProponi il tuo prezzo

Classe Energetica

G
G
G
G
G
G
G
G
G
EP globale non rinnovabile:
175.60 kW h/m² anno
EP globale rinnovabile:
175.60 kW h/m² anno
EP invernale del fabbricato:
EP estiva del fabbricato:
Anno di costruzione:
1960
Riscaldamento:
Assente

Ti interessa visionare l'immobile?

Fissa un appuntamento  Fissa un appuntamento

Richiedi informazioni

Clicca su Leggi per aprire l'informativa
* Questi campi sono obbligatori

Calcola il tuo mutuo

Semplice e senza impegno
Anticipo

( % )
Mutuo

( % )

pochi semplici passi

inserisci i tuoi dati
Questionario completato
Grazie per aver richiesto un appuntamento senza impegno con un nostro Consulente del Credito e Assicurativo.

Hai inserito correttamente tutti i dati necessari e a breve riceverai una e-mail con un link da convalidare per inviare i tuoi dati.
Affiliato
Studio Catania Est D.I.
Via MILANO, 78 95127 Catania (CT)

Il nostro staff


  • Carmelo Scuto
    Affiliato

  • Giusi Jessica Di Mauro
    Coordinatrice

  • Valentina Micele
    Coordinatrice

  • Nikolas Arria
    Collaboratore
Via MILANO, 78 95127 Catania (CT)
Zona: Catania - Corso Italia - Vittorio Veneto - Picanello
Mostra su mappa
Orari: dal Lunedì al Venerdì dalle ore 09:00 alle 13:00 e dalle ore 16:00 alle 20:00 - Sabato dalle ore 9:00 alle 13:00
Affiliato
Studio Catania Est D.I.
Via MILANO, 78 95127 Catania (CT)

2026 Tecnocasa Franchising S.p.A. - P. IVA 08365160152 - Via Monte Bianco 60/A 20089 Rozzano (MI). Ogni agenzia ha un proprio titolare ed è autonoma. Privacy policy | Policy utilizzo | Cookie policy