5 locali in vendita

Catania, Via Milano - Corso Italia
€ 250.000
5 locali 5 locali
172 Mq 172 Mq
2 bagni 2 bagni

5 locali in vendita

Catania, Via Milano - Corso Italia

Descrizione annuncio

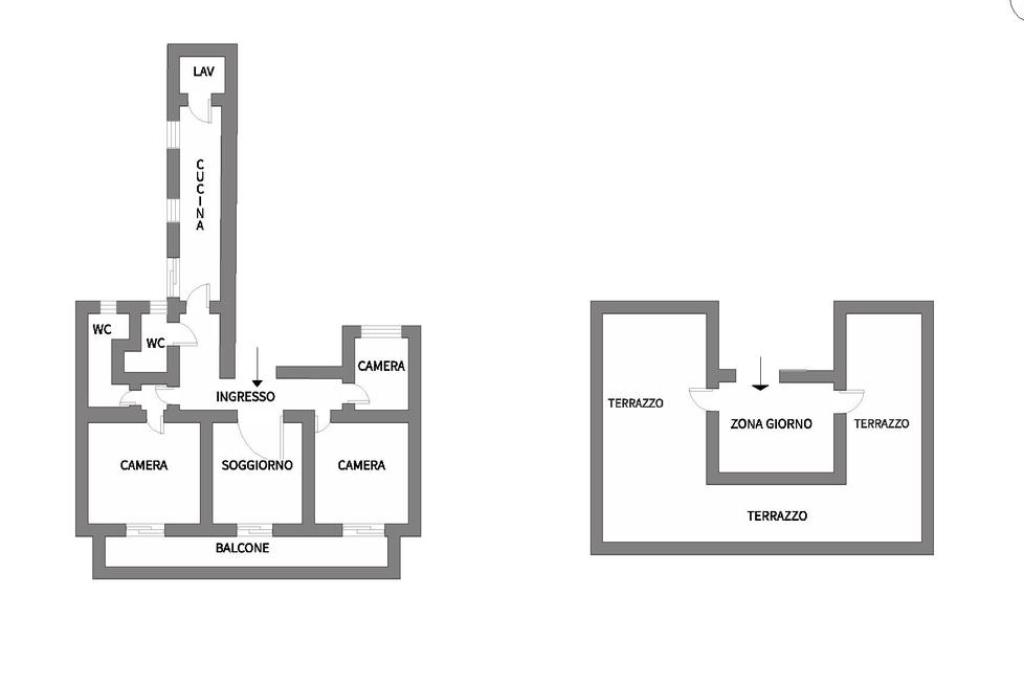
Nella zona del Corso Italia, esattamente in via Milano proponiamo in vendita un ampio appartamento di 5 vani strutturato su due livelli. Situato in un edificio civile degli anni '55, l'immobile è ubicato al 5° e 6° ed ultimo piano, facilmente raggiungibile grazie all'ascensore.

Con la sua ampia metratura, l'appartamento offre spazi generosi e ben distribuiti ed è internamente composto dalla zona giorno che comprende un ingresso su un soggiorno che funge anche da sala da pranzo, cucina media garantendo funzionalità e praticità, lavanderia, ripostiglio e bagno con doccia; La zona notte dispone di tre camere ben disimpegnate ed un secondo bagno con vasca. E' possibile raggiungere la zona giorno superiore tramite una scala interna che collega i due piani. Di pertinenza ampio terrazzo al livello di circa 80 mq.

Le condizioni interne sono buone e presenta pavimentazione mista con gres e scaglie di marmo, infissi in vetrocamera, riscaldamento autonomo col metano.

La zona è servita da diverse attività tutte raggiungibili a piedi e per chi non volesse adoperare la propria auto può usufruire del mezzi pubblici e della metropolitana che dista a soli 450 metri.

Contattaci per maggiori informazioni allo 095387884

Mostra tutto

Nelle vicinanze

Trasporto pubblico Trasporto pubblico
Italia
Italia
290 m
Galatea
Galatea
450 m
stazione di Italia
stazione di Italia
280 m
stazione di Galatea
stazione di Galatea
430 m
Corsica
Corsica
80 m
Ricariche auto elettriche Ricariche auto elettriche
Catania Ariosto | EnelX
230 m
Catania Corso Italia | EnelX
410 m
Catania Europa | EnelX
520 m
Catania Raffaello | EnelX
610 m
Catania Conte Ruggero | EnelX
710 m
Scuole Scuole
Collegio "Sacro Cuore di Gesù"
120 m
Istituto Scolastico Paritario "Alberto Moravia"
130 m
Istituto Statale d’Arte di Catania
150 m
Circolo Didattico "Giovanni Verga"
320 m
Circolo Didattico "Mario Rapisardi"
330 m
Farmacia Farmacia
Farmacia Salus
110 m
Parafarmacia dottore G. Pagano
150 m
Farmacia Europa
260 m
Croce Azzurra farmaci veterinari
280 m
Farmacia Aquileia
390 m
Ospedali Ospedali
Presidio ospedaliero Santa Marta
2,0 Km
Presidio ospedaliero Garibaldi Centro
2,1 Km
Ospedale Garibaldi Presidio San Luigi - Santi Currò
2,2 Km
Clinica Giovanni Battista Morgagni
2,4 Km
Ospedale "Ascoli-Tomaselli"
2,5 Km
Supermercati Supermercati
SMA
90 m
Lidl
150 m
Carrefour Express
160 m
Decò Gourmet
250 m
Supermercati
260 m
Negozi Negozi
La Biottega
90 m
Dolce pane
120 m
Ennio Ricci
230 m
Panificio Re Sole
240 m
Il Pane il Dolce
240 m
Bar Bar
Bar
440 m
Bonù
530 m
Laboratorio Pasticceria Via Napoli
550 m
Laboratorio via Napoli Gluten free
550 m
Caffè di Mauro
570 m
Ristoranti Ristoranti
Moroboshi Sushi Fusion
70 m
Saloon pub
280 m
Sosushi Ristorante Giapponese
310 m
Ristorante La nuova Marina
400 m
Al Tortellino
420 m
Mostra tutto

Caratteristiche

Rif.:
61107503
Piano:
5 di 6 con ascensore (Piano alto)
Balconi:
1
Terrazzi:
1
Camere da letto:
3
Arredamento:
Assente
Mostra tutto
Prezzo Prezzo
€ 250.000
Rata mutuo Rata mutuo
€ 1.165 / mese
Spese annue Spese annue
€ 1.080
Proponi il tuo prezzoProponi il tuo prezzo

Classe Energetica

G
G
G
G
G
G
G
G
G
EP globale non rinnovabile:
194.30 kW h/m² anno
EP globale rinnovabile:
194.30 kW h/m² anno
EP invernale del fabbricato:
EP estiva del fabbricato:
Anno di costruzione:
1960
Riscaldamento:
Autonomo
Tipo impianto:
A radiatori
Tipo alimentazione:
Metano

Ti interessa visionare l'immobile?

Fissa un appuntamento  Fissa un appuntamento

Richiedi informazioni

Clicca su Leggi per aprire l'informativa
* Questi campi sono obbligatori

Calcola il tuo mutuo

Semplice e senza impegno
Anticipo

( % )
Mutuo

( % )

pochi semplici passi

inserisci i tuoi dati
Questionario completato
Grazie per aver richiesto un appuntamento senza impegno con un nostro Consulente del Credito e Assicurativo.

Hai inserito correttamente tutti i dati necessari e a breve riceverai una e-mail con un link da convalidare per inviare i tuoi dati.
Affiliato
Studio Catania Est D.I.
Via MILANO, 78 95127 Catania (CT)

Il nostro staff


  • Carmelo Scuto
    Affiliato

  • Giusi Jessica Di Mauro
    Coordinatrice

  • Valentina Micele
    Coordinatrice

  • Nikolas Arria
    Collaboratore
Via MILANO, 78 95127 Catania (CT)
Zona: Catania - Corso Italia - Vittorio Veneto - Picanello
Mostra su mappa
Orari: dal Lunedì al Venerdì dalle ore 09:00 alle 13:00 e dalle ore 16:00 alle 20:00 - Sabato dalle ore 9:00 alle 13:00
Affiliato
Studio Catania Est D.I.
Via MILANO, 78 95127 Catania (CT)

2025 Tecnocasa Franchising S.p.A. - P. IVA 08365160152 - Via Monte Bianco 60/A 20089 Rozzano (MI). Ogni agenzia ha un proprio titolare ed è autonoma. Privacy policy | Policy utilizzo | Cookie policy